+35 more
4
Beds
5
Full Baths
1
Half Bath
4,316
Sq Ft
Source: Floor Plans (Builder/Architecture)
0.41
Acres
2024
Built
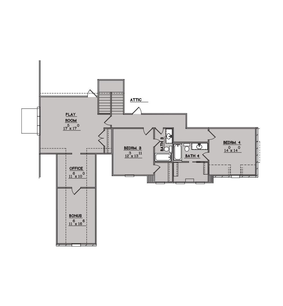
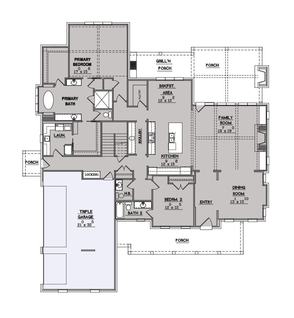
Stunning Regency Homebuilders model in sought-after Germantown! This 4-bedroom home offers 2 bedrooms down, plus an office, playroom, and bonus room for flexible living. The gourmet kitchen features Cafe appliances including a 48” 6-burner professional range, copper-tailored vent hood, and an open scullery perfect for prep and storage. Enjoy a spa-like primary bath with a 69” goldleaf freestanding tub. Throughout the home, you’ll find abundant built-in storage and custom millwork that blends style and function. Thoughtful touches include a cozy dog retreat under the stairs, a spacious triple garage, and both covered front and back porches with a built-in grilling area—ideal for entertaining. Please note this home includes many optional features available in our Design Studio, offering opportunities to personalize with designer details and upscale finishes. This home is a perfect balance of elegance, comfort, and practicality in one of Germantown’s most desirable communities.
Features
Interior
| Living/Dining/Kitchen | Separate Dining Room, Great Room, Eat-In Kitchen, Pantry, Island In Kitchen |
| Appliances | Range/Oven, Gas Cooking, Disposal, Dishwasher, Microwave, Refrigerator, Cable Wired |
| Additional Rooms | Laundry Room, Play Room, Media Room, Attic |
| Other Interior Features | Walk-In Closet(s), Attic Access, Powder/Dressing Room, Security System, Smoke Detector(s), Vent Hood/Exhaust Fan |
| Flooring | Part Hardwood, Part Carpet, Tile, Smooth Ceiling, 9 or more Ft. Ceiling, Vaulted/Coff/Tray Ceiling |
| Fireplace | Ventless Gas Fireplace, In Den/Great Room, Gas Logs |
| First Floor | Dining Room, Den/Great Room, Kitchen, Primary Bedroom, 2nd Bedroom, 1/2 Bath, 2 or More Baths, Laundry Room, Breakfast Room |
| Second Floor | 3rd Bedroom, 4th or More Bedrooms, 2 or More Baths, Play Room/Rec Room, Office |
| Total Rooms | 11 |
| Bedrooms Downstairs | 2 |
Utilities
| Heating | Central, Gas |
| Cooling | Central, Ceiling Fan(s) |
| Water/Sewer | Public Water, Public Sewer |
Exterior & Lot
| Number of Stories | 2.0 |
| Pool | None |
| Roof | Composition Shingles |
| Exterior Windows | Brick Veneer, Wood/Composition, Double Pane Window(s) |
| Parking | Garage Door Opener(s), Side-Load Garage |
| Lot Description | Professionally Landscaped |
| Other Exterior Features | Gas Grill, Porch, Covered Patio |
| Foundation | Slab |
| Lot Dimensions | .41 |
| Covered Parking | 3 |
Neighborhood
| Directions | This home is located in Goodwin Farms off of Winchester Road in Germantown. Heading west on Winchester, just past Houston Levee, turn right onto Goodwin Farms Dr and then turn left onto Knoll Crest Drive. It is the first house on the right. |
1 / 40
9518 KNOLL CREST

