+22 more
2
Beds
2
Full Baths
1
Half Bath
2,253
Sq Ft
Source: Floor Plans (Builder/Architecture)
0.07
Acres
2025
Built
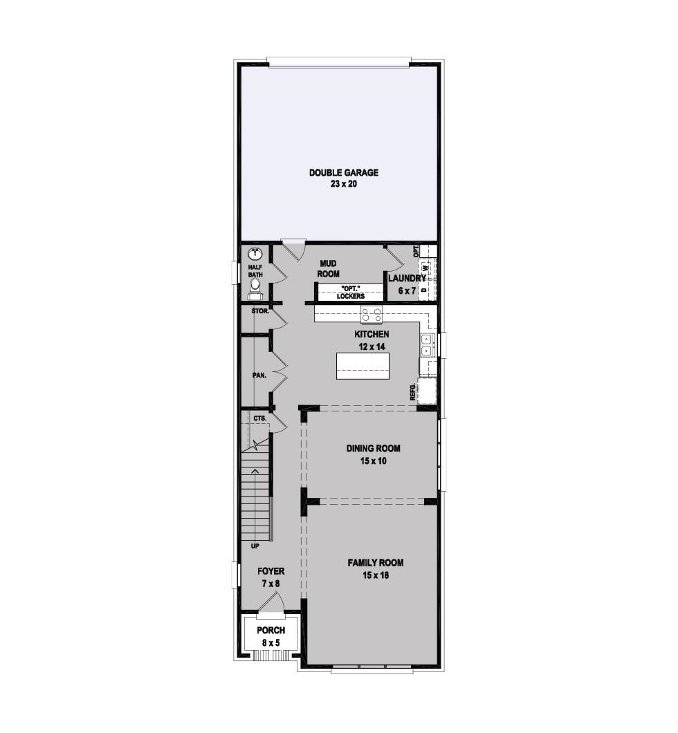
Welcome to the Cyrus! This stunning 4 bed, 3 bath home located at 8667 Colleton Way, Cordova, TN in Sunset Downs features an open concept floor plan with a large living room that flows directly into the kitchen—perfect for entertaining. Bright, open spaces offering plenty of natural light and a thoughtful layout make it ideal for gatherings big or small. Enjoy nearby walking trails and a quick 5-minute drive to shopping and dining. This beautiful home is move-in ready, all it needs is you!
Features
Interior
| Living/Dining/Kitchen | Separate Dining Room, Great Room, Breakfast Bar, Pantry, Island In Kitchen |
| Appliances | Range/Oven, Gas Cooking, Disposal, Dishwasher, Microwave, Cable Wired |
| Additional Rooms | Laundry Room, Attic |
| Other Interior Features | Walk-In Closet(s), Attic Access, Powder/Dressing Room, Cat/Dog Free House, Security System, Smoke Detector(s) |
| Flooring | Part Hardwood, Part Carpet, Tile, Smooth Ceiling, 9 or more Ft. Ceiling, Vaulted/Coff/Tray Ceiling |
| Fireplace | Ventless Gas Fireplace, In Den/Great Room |
| First Floor | Dining Room, Den/Great Room, Kitchen, 1/2 Bath, Laundry Room |
| Second Floor | Primary Bedroom, 2nd Bedroom, 3rd Bedroom, 4th or More Bedrooms, 2 or More Baths |
| Total Rooms | 8 |
Utilities
| Heating | Central, Gas |
| Cooling | Central, Ceiling Fan(s) |
| Water/Sewer | Gas Water Heater, Public Water, Public Sewer |
Exterior & Lot
| Number of Stories | 2.0 |
| Pool | None |
| Roof | Composition Shingles |
| Exterior Windows | Brick Veneer, Wood/Composition, Double Pane Window(s) |
| Parking | Garage Door Opener(s), Back-Load Garage |
| Lot Description | Professionally Landscaped |
| Other Exterior Features | Porch |
| Foundation | Slab |
| Lot Dimensions | .07 |
| Covered Parking | 2 |
Neighborhood
| Directions | Take N Germantown Pkwy to Trinity Rd. Turn left on Trinity Rd. Turn left onto N Erickson Rd before Sanga Rd. |
1 / 27
8667 COLLETON

