+22 more
4
Beds
3
Baths
2,212
Sq Ft
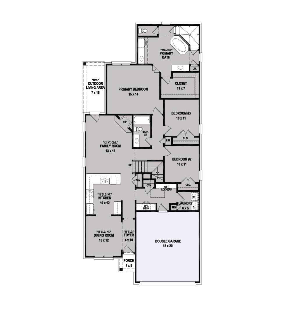
Source: Floor Plans (Builder/Architecture)
0.17
Acres
2025
Built
Welcome to your own slice of golf course paradise! This Clark floor plan by Regency Homebuilders is your unique opportunity for brand new construction on the golf course with up-to-date finishes, a formal dining area, spa worthy primary suite, and a covered patio to take in the views. The Villas at Fair Oaks community truly offers the ultimate low maintenance living! HOA covers exterior maintenance, a community pool & clubhouse. This home is READY NOW!!! **Contact us now to learn more about the current $25,000 builder promotion on this home!!**
Features
Interior
| Living/Dining/Kitchen | Separate Dining Room, Great Room, Breakfast Bar, Pantry |
| Appliances | Range/Oven, Gas Cooking, Disposal, Dishwasher, Microwave, Cable Wired |
| Additional Rooms | Laundry Room, Attic |
| Other Interior Features | Walk-In Closet(s), Attic Access, Security System, Smoke Detector(s) |
| Flooring | Part Hardwood, Part Carpet, Tile, Smooth Ceiling, 9 or more Ft. Ceiling, Vaulted/Coff/Tray Ceiling |
| Fireplace | Ventless Gas Fireplace, In Den/Great Room |
| First Floor | Dining Room, Den/Great Room, Kitchen, Primary Bedroom, 2nd Bedroom, 3rd Bedroom, 2 or More Baths, Laundry Room |
| Second Floor | 4th or More Bedrooms, 1 Bath |
| Total Rooms | 8 |
| Bedrooms Downstairs | 3 |
Utilities
| Heating | Central, Gas |
| Cooling | Central, Ceiling Fan(s) |
| Water/Sewer | Gas Water Heater, Public Water, Public Sewer |
Exterior & Lot
| Number of Stories | 2.0 |
| Pool | Neighborhood |
| Roof | Composition Shingles |
| Exterior Windows | Brick Veneer, Wood/Composition, Double Pane Window(s) |
| Parking | Garage Door Opener(s), Front-Load Garage |
| Lot Description | Professionally Landscaped |
| Other Exterior Features | Porch, Covered Patio |
| Foundation | Slab |
| Lot Dimensions | .17 |
| Covered Parking | 2 |
Neighborhood
| Amenities | Club House, Golf Course, Pool |
| Directions | East on Highway 64, left on Highway 194, right on Fairoaks Drive, and right onto St. Andrews Drive. |
1 / 27
22 DORAL

