+3 more
3
Beds
2
Full Baths
1
Half Bath
2,154
Sq Ft
Source: Floor Plans (Builder/Architecture)
0.16
Acres
2025
Built
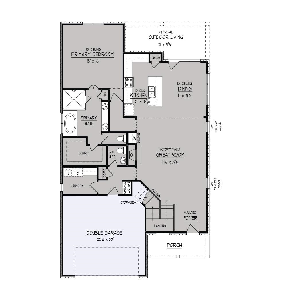
Welcome to Walnut Green, Regency’s newest community! The Garner II is a beautiful designer curated home offering main-level living with the primary suite downstairs and a stunning staircase to the second floor. The light-filled family room features vaulted ceilings and opens to a chef’s kitchen with a large gathering island, white cabinetry, granite counters, and performance hardwood flooring in the main areas. Enjoy 10' ceilings, built-ins, and a convenient drop zone off the garage. This home includes 3 bedrooms and 2.5 baths, with two generous bedrooms and a spacious loft upstairs. Blinds are included. Step outside to a covered outdoor living area and a fenced backyard, along with community sidewalks throughout this fantastic Cordova location. A wonderful blend of style, comfort, and thoughtful design.
Features
Interior
| Living/Dining/Kitchen | Great Room, Separate Breakfast Room, Pantry, Island In Kitchen |
| Appliances | Range/Oven, Gas Cooking, Disposal, Dishwasher, Microwave, Cable Wired |
| Additional Rooms | Laundry Room, Loft/Balcony |
| Other Interior Features | Walk-In Closet(s), Powder/Dressing Room, Security System, Smoke Detector(s) |
| Flooring | Part Hardwood, Part Carpet, Tile, Smooth Ceiling, 9 or more Ft. Ceiling, Vaulted/Coff/Tray Ceiling |
| Fireplace | Ventless Gas Fireplace, In Den/Great Room |
| First Floor | Den/Great Room, Kitchen, Primary Bedroom, 1 1/2 Bath, Laundry Room, Breakfast Room |
| Second Floor | 2nd Bedroom, 3rd Bedroom, 1 Bath |
| Total Rooms | 8 |
| Bedrooms Downstairs | 1 |
Utilities
| Heating | Central, Gas |
| Cooling | Central, Ceiling Fan(s) |
| Water/Sewer | Gas Water Heater, Public Water, Public Sewer |
Exterior & Lot
| Number of Stories | 2.0 |
| Pool | None |
| Roof | Composition Shingles |
| Exterior Windows | Brick Veneer, Wood/Composition, Double Pane Window(s), Vinyl Windows |
| Parking | Garage Door Opener(s), Front-Load Garage |
| Lot Description | Professionally Landscaped |
| Other Exterior Features | Porch, Covered Patio |
| Foundation | Slab |
| Lot Dimensions | .16 |
| Covered Parking | 2 |
Neighborhood
| Directions | West on Walnut Grove from Houston Levee. Turn right into the neighborhood across from Grays Hollow Drive. |
1 / 8
173 BITTER BRANCH

