+2 more
3
Beds
2
Full Baths
1
Half Bath
1,851
Sq Ft
Source: Floor Plans (Builder/Architecture)
2025
Built
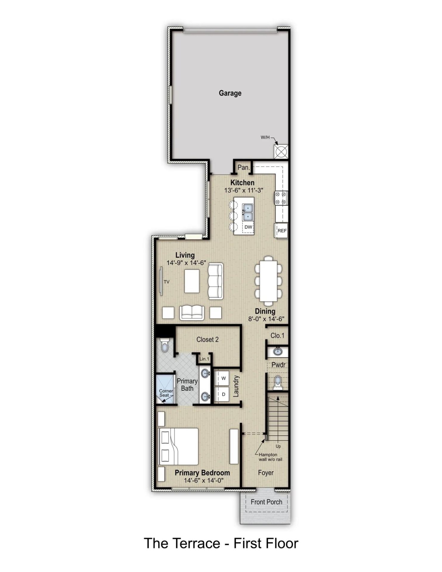
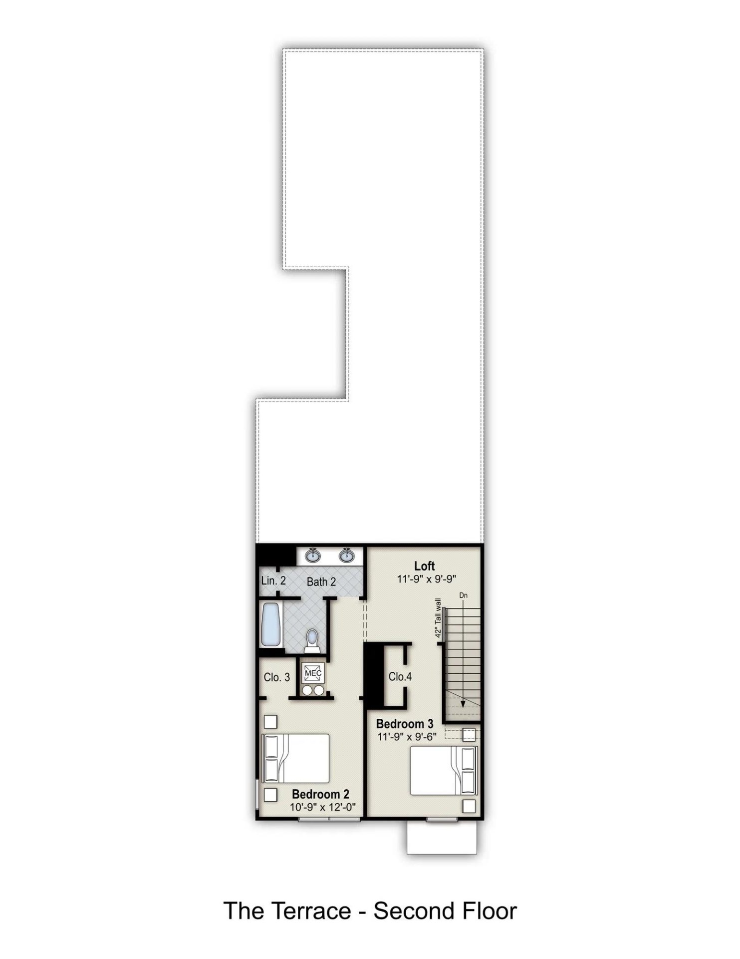
Our next townhomes are officially under construction! Primary Suite downstairs! ½ Bath for guests downstairs! RevWood Flooring throughout the downstairs, and hardwood on stairs! Electric fireplace in living room! Quartz countertops everywhere! Designer Color Palette for each individual style! Blinds included! 2 Bedrooms, loft, and full bathroom with double sink vanity upstairs! 2 Car Attached Garage! HOA covers lawn maintenance and exterior building maintenance! Future Pool! Walking Trails! Neighborhood Pond!
Features
Interior
| Living/Dining/Kitchen | Great Room, Eat-In Kitchen, Pantry, Island In Kitchen |
| Appliances | Range/Oven, Disposal, Dishwasher, Microwave |
| Additional Rooms | Laundry Room, Loft/Balcony |
| Other Interior Features | Excl Some Window Treatmnt, Smoke Detector(s) |
| Flooring | Part Carpet, Tile, Vinyl/Luxury Vinyl Floor, Smooth Ceiling |
| Fireplace | In Den/Great Room |
| First Floor | Den/Great Room, Kitchen, Primary Bedroom, 1 1/2 Bath, Laundry Room |
| Second Floor | 2nd Bedroom, 3rd Bedroom, 1 Bath |
| Total Rooms | 7 |
| Bedrooms Downstairs | 1 |
Utilities
| Heating | Central, Electric |
| Cooling | Central |
| Water/Sewer | Electric Water Heater, Public Sewer |
Exterior & Lot
| Number of Stories | 2.0 |
| Pool | Neighborhood |
| Roof | Composition Shingles |
| Exterior Windows | Double Pane Window(s) |
| Parking | Garage Door Opener(s), Back-Load Garage |
| Lot Description | Some Trees, Professionally Landscaped |
| Other Exterior Features | Auto Lawn Sprinkler, Sidewalks |
| Foundation | Slab |
| Lot Dimensions | 2716 |
| Covered Parking | 2 |
Neighborhood
| Amenities | Pool |
| Directions | Head West on 64 from Wolfchase, turn right on Summer. Turn left on Talcott. The townhome is in the second building on the left. Turn left on Portage to park in the front of the townhome building. |
1 / 7
3056 PORTAGE

