+4 more
5
Beds
3
Baths
3,310
Sq Ft
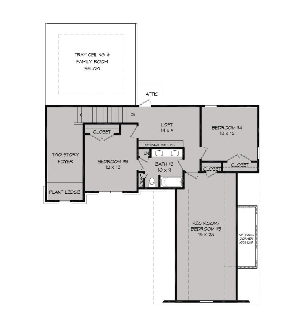
Source: Floor Plans (Builder/Architecture)
0.24
Acres
2025
Built
Welcome to Grays Hollow - a Regency Homebuilders community off of Walnut Grove in Cordova! This Bailey plan is a 5 bedroom, 3 bathroom home with an open concept and a large vaulted Outdoor Living area! This home boasts upscale finishes including stainless steel appliances, Quartz countertops, and wood shelving throughout. Blinds AND a fence are also included, so you don't have to worry about those added expenses after closing! This home is under construction and expected to be complete in May of 2026. Don't miss your chance to own this beautiful new home!
Features
Interior
| Living/Dining/Kitchen | Separate Dining Room, Great Room, Separate Breakfast Room, Pantry, Island In Kitchen |
| Appliances | Range/Oven, Gas Cooking, Disposal, Dishwasher, Microwave, Cable Wired |
| Additional Rooms | Laundry Room, Loft/Balcony, Attic |
| Other Interior Features | All Window Treatments, Walk-In Closet(s), Attic Access, Security System, Smoke Detector(s) |
| Flooring | Part Hardwood, Part Carpet, Tile, Smooth Ceiling, 9 or more Ft. Ceiling, Vaulted/Coff/Tray Ceiling, Two Story Foyer |
| Fireplace | Ventless Gas Fireplace, In Den/Great Room |
| First Floor | Dining Room, Den/Great Room, Kitchen, Primary Bedroom, 2nd Bedroom, 2 or More Baths, Laundry Room, Breakfast Room |
| Second Floor | 3rd Bedroom, 4th or More Bedrooms, 1 Bath |
| Total Rooms | 11 |
| Bedrooms Downstairs | 2 |
Utilities
| Heating | Central, Gas |
| Cooling | Central, Ceiling Fan(s) |
| Water/Sewer | Gas Water Heater, Public Water, Public Sewer |
Exterior & Lot
| Number of Stories | 2.0 |
| Pool | None |
| Roof | Composition Shingles |
| Exterior Windows | Brick Veneer, Wood/Composition, Double Pane Window(s), Vinyl Windows |
| Parking | Garage Door Opener(s), Side-Load Garage |
| Lot Description | Professionally Landscaped, Wood Fenced |
| Other Exterior Features | Porch, Covered Patio, Wood Fence |
| Foundation | Slab |
| Lot Dimensions | .24 |
| Covered Parking | 2 |
Neighborhood
| Directions | West on Walnut Grove from Houston Levee. Turn left onto Grays Hollow Drive. |
1 / 9
9562 GRAYS HOLLOW

