+3 more
4
Beds
3
Baths
2,497
Sq Ft
Source: Floor Plans (Builder/Architecture)
0.23
Acres
2025
Built
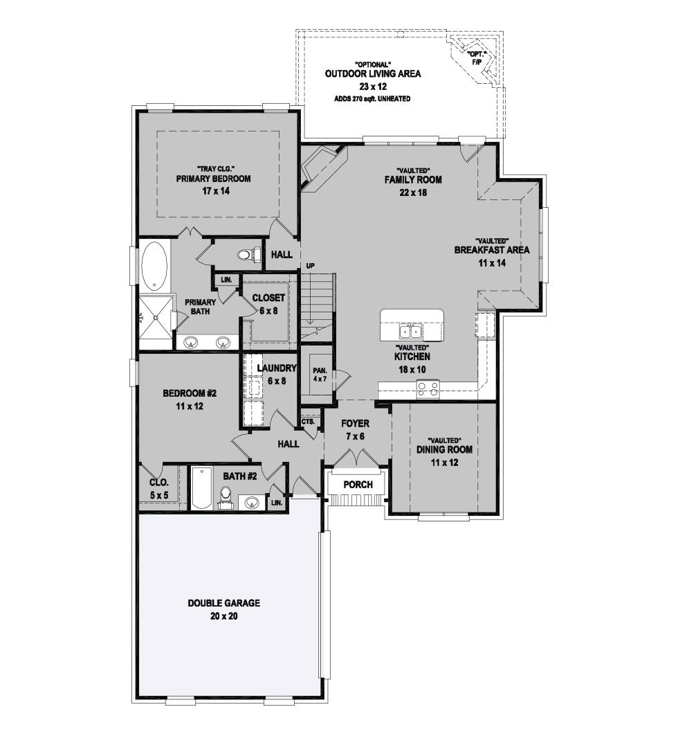
Welcome to Fairway Village - a Regency Homebuilders community in Oakland. The Bristol is an open concept floorplan with 4 bedrooms, 3 bathrooms, and a large outdoor living area for relaxing and entertaining. This home is equipped with luxury finishes including quartz countertops, stainless steel appliances, wood shelving, and a freestanding tub in the primary bathroom. Blinds AND a fence are also included, so you don't have to worry about those added expenses after closing! This home is under construction and expected to be complete in April of 2026. Don't miss your chance to own this beautiful new home!
Features
Interior
| Living/Dining/Kitchen | Separate Dining Room, Great Room, Separate Breakfast Room, Pantry, Island In Kitchen |
| Appliances | Range/Oven, Gas Cooking, Disposal, Dishwasher, Microwave, Cable Wired |
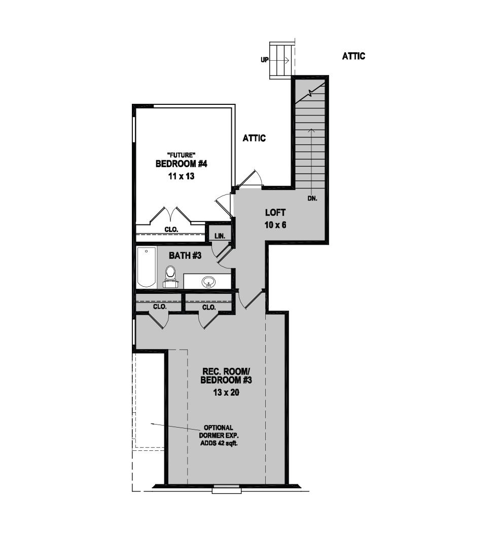
| Additional Rooms | Laundry Room, Loft/Balcony |
| Other Interior Features | All Window Treatments, Walk-In Closet(s), Attic Access, Security System, Smoke Detector(s), Other (See REMARKS) |
| Flooring | Part Hardwood, Part Carpet, Tile, Smooth Ceiling, 9 or more Ft. Ceiling, Vaulted/Coff/Tray Ceiling |
| Fireplace | Ventless Gas Fireplace, In Den/Great Room |
| First Floor | Dining Room, Den/Great Room, Kitchen, Primary Bedroom, 2nd Bedroom, 2 or More Baths, Laundry Room, Breakfast Room |
| Second Floor | 3rd Bedroom, 4th or More Bedrooms, 1 Bath |
| Total Rooms | 10 |
| Bedrooms Downstairs | 2 |
Utilities
| Heating | Central, Gas |
| Cooling | Central, Ceiling Fan(s) |
| Water/Sewer | Gas Water Heater, Public Water, Public Sewer |
Exterior & Lot
| Number of Stories | 2.0 |
| Pool | None |
| Roof | Composition Shingles |
| Exterior Windows | Brick Veneer, Wood/Composition, Double Pane Window(s), Vinyl Windows |
| Parking | Garage Door Opener(s), Side-Load Garage |
| Lot Description | Professionally Landscaped, Wood Fenced |
| Other Exterior Features | Porch, Covered Patio, Wood Fence |
| Foundation | Slab |
| Lot Dimensions | .23 |
| Covered Parking | 2 |
Neighborhood
| Directions | East on Highway 64, left on Highway 194, left on Wirt Road, and continue onto Laurel Glen Drive. |
1 / 8
110 LAUREL WOOD

