+12 more
3
Beds
1
Full Bath
1
Half Bath
1,380
Sq Ft
Source: AutoFill (MAARdata) or Public Records (Cnty Assessor Site)
0.34
Acres
1940
Built
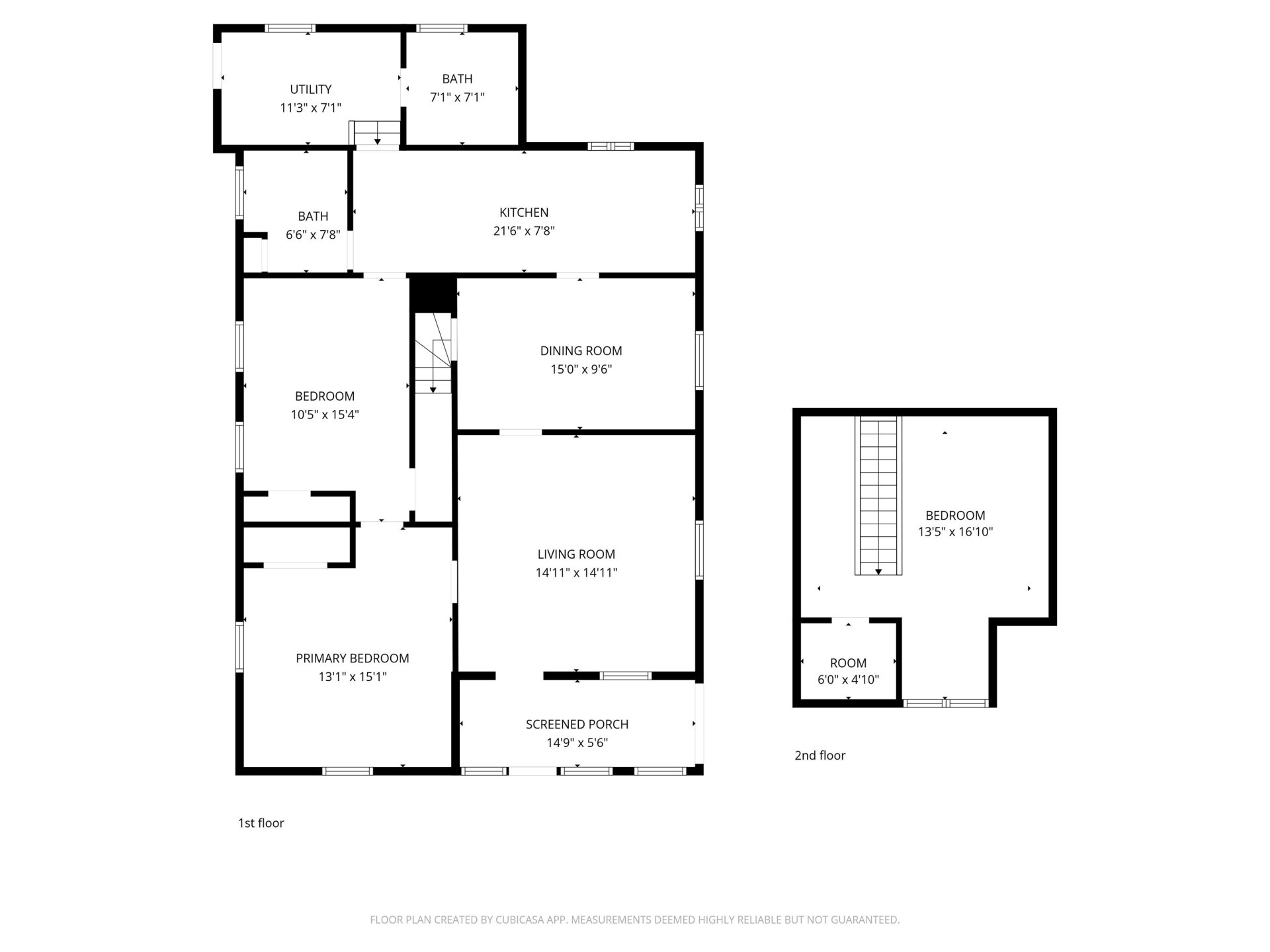
REDUCED - $225,000! Ellendale/Bartlett 3BDRM, 1.5BA home packed with potential has been reduced to $225k. Perfect for investors or DIY buyers ready to create instant equity, this property offers “good bones” w/endless possibilities. Hardwood floors beneath the carpet in the living room, dining room, and front Bedroom. Paneled walls, a step-down laundry area with washer/dryer & 1/2BA. The upstairs attic was converted into a 3rd BDRM. Heated by floor furnace & cooled with window units. 2CA, and a detached 1 car garage or workshop with electricity, & storage room. Vinyl siding and roof are in good condition (ceiling stains pre-date the roof replacement). Situated in the Bartlett/Ellendale area with top-rated schools, this neighborhood shows strong growth with significant appreciation potential. This is your chance to grab a high-potential property in a sought-after area and make it your own. Schedule your showing and make an offer today!
Features
Interior
| Living/Dining/Kitchen | Separate Living Room, Separate Dining Room, Washer/Dryer Connections, Vinyl/Luxury Vinyl Floor |
| Appliances | Range/Oven, Gas Cooking, Washer, Dryer |
| Additional Rooms | Laundry Room, Sun Room |
| Other Interior Features | Permanent Attic Stairs, Cat/Dog Free House, Other (See REMARKS) |
| Flooring | Part Carpet, Vinyl/Luxury Vinyl Floor |
| First Floor | Living Room, Dining Room, Kitchen, Primary Bedroom, 2nd Bedroom, 1/2 Bath, 1 Bath, Laundry Room |
| Total Rooms | 7 |
| Bedrooms Downstairs | 2 |
Utilities
| Heating | Gas, Floor Furnace |
| Cooling | Window Unit(s), 220 Wiring |
| Water/Sewer | Public Water, Public Sewer |
Financial
| Annual City Tax | $604 |
| Annual County Tax | $1,184 |
Exterior & Lot
| Number of Stories | 1.0 |
| Pool | None |
| Roof | Composition Shingles |
| Exterior Windows | Vinyl Siding |
| Parking | Other (See REMARKS) |
| Lot Description | Some Trees, Level |
| Other Exterior Features | Other (See REMARKS) |
| Foundation | Other (See Remarks) |
| Lot Dimensions | 100X150 |
| Covered Parking | 2 |
Neighborhood
| Directions | Take Summer Ave to Broadway and turn Left on Broadway. Follow Broadway to Memphis Arlington and turn left and cross over the railroad track. The house will be on the Right. |
1 / 17
7274 CENTRALIA

