+25 more
4
Beds
2
Baths
1,998
Sq Ft
Source: AutoFill (MAARdata) or Public Records (Cnty Assessor Site)
0.44
Acres
1975
Built
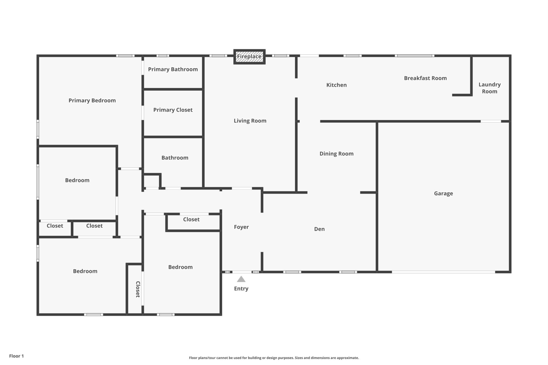
Back on the market with a big new update - foundation work completed by Olshan! Rare one-level home w/ garage in Germantown's sought-after Poplar Estates! Charming front porch w/ haint blue ceiling welcomes you in this adorable 'Goldilocks' home - not too big, not too small - it's just right! Updated eat-in kitchen features gas cooking, ceiling-height cabinets & butler's pantry w/ prep sink. The attached garage (no carport here!) opens to a large laundry/mudroom. The primary bedroom suite boasts a BIG walk-in closet and new frameless glass shower doors! Four bedrooms, two full bathrooms, living room, formal dining room, plus a sitting room that would make a great office. Nearly 1/2 acre lot w/ storage building offers ample opportunity for play & hobbies!
Features
Interior
| Living/Dining/Kitchen | Separate Living Room, Separate Dining Room, Separate Den, Updated/Renovated Kitchen, Eat-In Kitchen |
| Appliances | Gas Cooking, Disposal, Dishwasher, Microwave, Refrigerator, Washer, Dryer |
| Additional Rooms | Laundry Room |
| Other Interior Features | All Window Treatments |
| Flooring | Part Hardwood, Parquet Floor |
| Fireplace | Masonry |
| First Floor | Living Room, Dining Room, Den/Great Room, Kitchen, Primary Bedroom, 2nd Bedroom, 3rd Bedroom, 4th of More Bedrooms, 2 or More Baths, Laundry Room |
| Total Rooms | 9 |
| Bedrooms Downstairs | 4 |
Utilities
| Heating | Central |
| Cooling | Central, Ceiling Fan(s) |
| Water/Sewer | Public Water, Public Sewer |
Financial
| Annual City Tax | $1,360 |
| Annual County Tax | $2,508 |
Exterior & Lot
| Number of Stories | 1.0 |
| Pool | None |
| Roof | Composition Shingles |
| Exterior Windows | Brick Veneer |
| Parking | Driveway/Pad, Front-Load Garage |
| Lot Description | Wooded |
| Other Exterior Features | Wrought Iron Security Drs, Porch, Patio, Wooded Grounds, Storage |
| Foundation | Slab |
| Lot Dimensions | 105X185 |
| Covered Parking | 2 |
Neighborhood
| Directions | Heading east on Neshoba, turn left on Holly Hill Drive. Home will be on your right. |
1 / 30
1528 HOLLY HILL

