+22 more
3
Beds
1
Full Bath
1
Half Bath
1,368
Sq Ft
Source: AutoFill (MAARdata) or Public Records (Cnty Assessor Site)
0.34
Acres
1966
Built
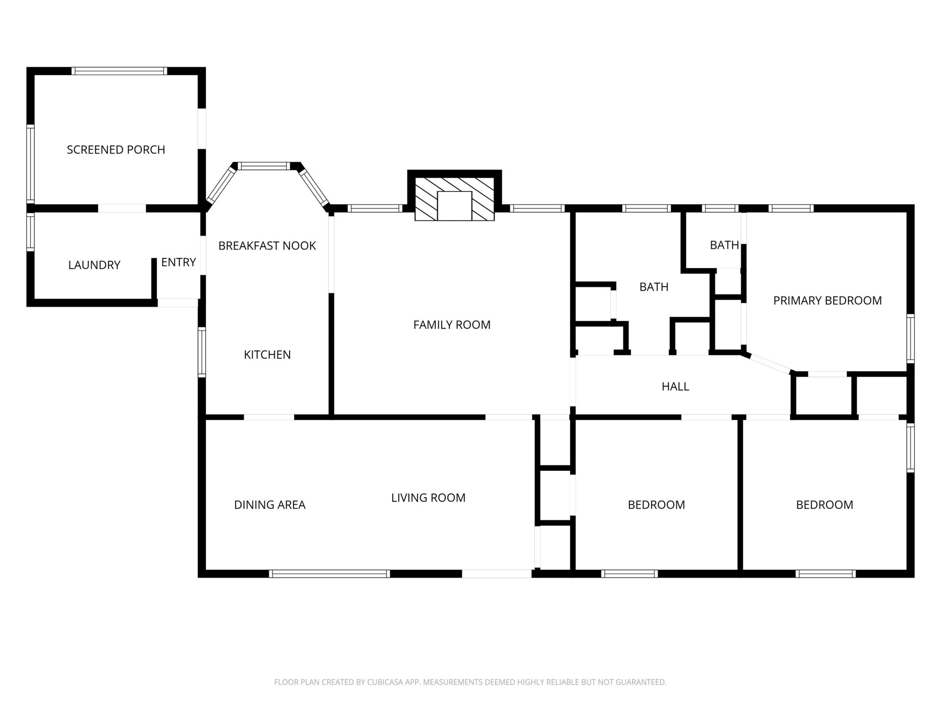
Charming 3-bedroom, 1.5-bath home in the heart of Bartlett! Situated on a large corner lot, this property offers tons of potential & instant equity with just a little work. Inside, you’ll find a spacious living room, a cozy den, & a small office-perfect for home office, sunroom, exercise room. Recent updates include new bathroom floors, new toilets, a new furnace, and a new hot water tank. Enjoy excellent outdoor features such as a 20x24 wired detached garage, a double gate in the backyard, and an RV parking pad-ideal for trailers, boats, or extra vehicles. Located in the highly sought-after award-winning Bartlett school district and just a short walk to Elmore Park. Don’t miss this chance to make a great Bartlett home your own!
Features
Interior
| Living/Dining/Kitchen | Separate Living Room, Separate Den, Eat-In Kitchen |
| Appliances | Range/Oven, Disposal |
| Additional Rooms | Laundry Room, Office/Sewing Room |
| Other Interior Features | Pull Down Attic Stairs |
| Flooring | Part Carpet, Tile, Vinyl/Luxury Vinyl Floor, Textured Ceiling |
| First Floor | Living Room, Dining Room, Den/Great Room, Kitchen, Primary Bedroom, 2nd Bedroom, 3rd Bedroom, 1 1/2 Bath, Office |
| Total Rooms | 6 |
| Bedrooms Downstairs | 3 |
Utilities
| Heating | Central |
| Cooling | Central |
| Water/Sewer | Gas Water Heater, Public Water, Public Sewer |
Financial
| Annual City Tax | $640 |
| Annual County Tax | $1,253 |
Exterior & Lot
| Number of Stories | 1.0 |
| Pool | None |
| Roof | Composition Shingles |
| Exterior Windows | Brick Veneer |
| Parking | Driveway/Pad, Workshop(s), Garage Door Opener(s), Front-Load Garage |
| Lot Description | Some Trees, Level, Cove, Corner |
| Other Exterior Features | Storage Building, Deck |
| Lot Dimensions | 120X120 |
| Covered Parking | 3 |
Neighborhood
| Directions | From Stage Road - South on Altruria - Right on Constance - Left on N Star - Home will be on the left |
1 / 27
2694 NORTH STAR

