+24 more
3
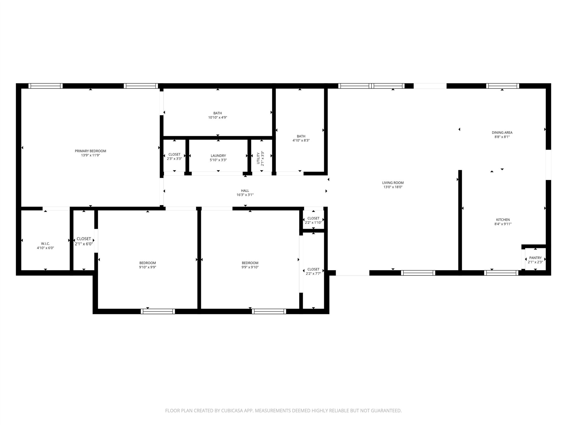
Beds
2
Baths
1,164
Sq Ft
Source: AutoFill (MAARdata) or Public Records (Cnty Assessor Site)
2023
Built
Like-new construction built in 2023, this 3-bedroom, 2-bath home offers efficient one-level living with a practical layout. Main living areas feature durable flooring, while all bedrooms include carpet for added comfort. The open kitchen and living space provides a functional flow and comes furnished with stainless steel appliances, including the refrigerator. Situated on a manageable lot in Brownsville with easy access to local amenities. Move-in ready with modern systems and finishes throughout.
Features
Interior
| Living/Dining/Kitchen | Eat-In Kitchen, Pantry, Vinyl/Luxury Vinyl Floor |
| Appliances | Range/Oven, Dishwasher, Microwave |
| Flooring | Part Carpet, Vinyl/Luxury Vinyl Floor |
| Total Rooms | 6 |
| Bedrooms Downstairs | 3 |
Utilities
| Heating | Central, Electric |
| Cooling | Central, Ceiling Fan(s) |
| Water/Sewer | Electric Water Heater, Public Water, Public Sewer |
Financial
| Annual City Tax | $770 |
| Annual County Tax | $1,000 |
Exterior & Lot
| Number of Stories | 1.0 |
| Pool | None |
| Roof | Composition Shingles |
| Exterior Windows | Brick Veneer |
| Parking | Driveway/Pad |
| Lot Description | Level |
| Other Exterior Features | Porch |
| Foundation | Slab |
| Lot Dimensions | 102x80 |
| Covered Parking | 1 |
Neighborhood
| Directions | I-40 to exit 56, North on Hwy 76/Anderson Ave., Left on Hwy 79, Right on Hatchie St., Left on Rev Hill Ln., Left on Harris Dr., house on Left. |
1 / 29
47 HARRIS

