5
Beds
4
Full Baths
1
Half Bath
3,481
Sq Ft
Source: Floor Plans (Builder/Architecture)
0.47
Acres
2026
Built
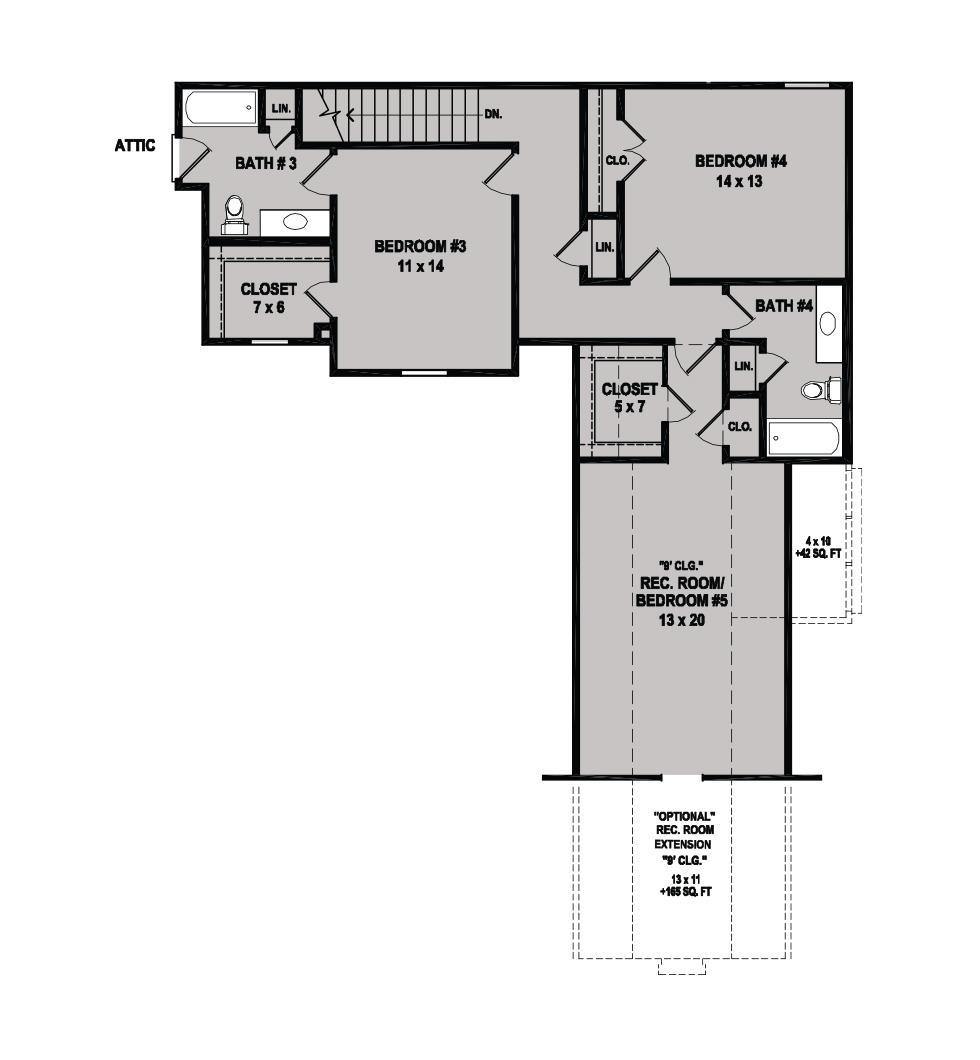
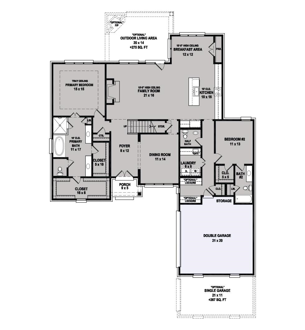
This stunning new construction by Regency Homebuilders is located in the desirable Gray’s Hollow subdivision of Cordova, TN, and features the popular Garland floor plan. Designed with an open-concept layout, this home offers 5 spacious bedrooms and 4.5 bathrooms, providing plenty of room for both everyday living and entertaining. Situated on a generous .47-acre lot, the home blends comfort and functionality with upscale finishes throughout. The primary suite boasts a spa-inspired bathroom with a freestanding tub, seamless glass shower, and quartz countertops. The chef’s kitchen is thoughtfully appointed with a gas range, vent hood, microwave drawer, trash pull-out, quartz countertops, stylish backsplash, and a large island. Enjoy outdoor living year-round on the covered patio with a woodburning fireplace. Additional features include a fenced yard, blinds, and wood shelving throughout the home. Estimated completion is August 2026—secure your place in this exceptional community today!
Features
Interior
| Living/Dining/Kitchen | Separate Dining Room, Great Room, Separate Breakfast Room, Pantry, Island In Kitchen |
| Appliances | Range/Oven, Gas Cooking, Disposal, Dishwasher, Microwave, Cable Wired, Other (See REMARKS) |
| Additional Rooms | Laundry Room, Attic |
| Other Interior Features | All Window Treatments, Walk-In Closet(s), Attic Access, Powder/Dressing Room, Security System, Smoke Detector(s), Vent Hood/Exhaust Fan, Other (See REMARKS) |
| Flooring | Part Hardwood, Part Carpet, Tile, Smooth Ceiling, 9 or more Ft. Ceiling, Vaulted/Coff/Tray Ceiling |
| Fireplace | Ventless Gas Fireplace, In Den/Great Room |
| First Floor | Dining Room, Den/Great Room, Kitchen, Primary Bedroom, 2nd Bedroom, 1/2 Bath, 2 or More Baths, Laundry Room, Breakfast Room |
| Second Floor | 3rd Bedroom, 4th or More Bedrooms, 2 or More Baths |
| Total Rooms | 10 |
| Bedrooms Downstairs | 2 |
Utilities
| Heating | Central, Gas |
| Cooling | Central, Ceiling Fan(s) |
| Water/Sewer | Gas Water Heater, Public Water, Public Sewer |
Exterior & Lot
| Number of Stories | 2.0 |
| Pool | None |
| Roof | Composition Shingles |
| Exterior Windows | Brick Veneer, Wood/Composition, Double Pane Window(s), Vinyl Windows |
| Parking | Garage Door Opener(s), Side-Load Garage |
| Lot Description | Professionally Landscaped |
| Other Exterior Features | Porch, Covered Patio, Wood Fence |
| Foundation | Slab |
| Lot Dimensions | .47 |
| Covered Parking | 2 |
Neighborhood
| Directions | Head West on Walnut Grove from Houston Levee. Turn left onto Grays Hollow Drive. |
1 / 5
9614 GRAYS VALLEY

