4
Beds
3
Baths
2,497
Sq Ft
Source: Floor Plans (Builder/Architecture)
0.23
Acres
2026
Built
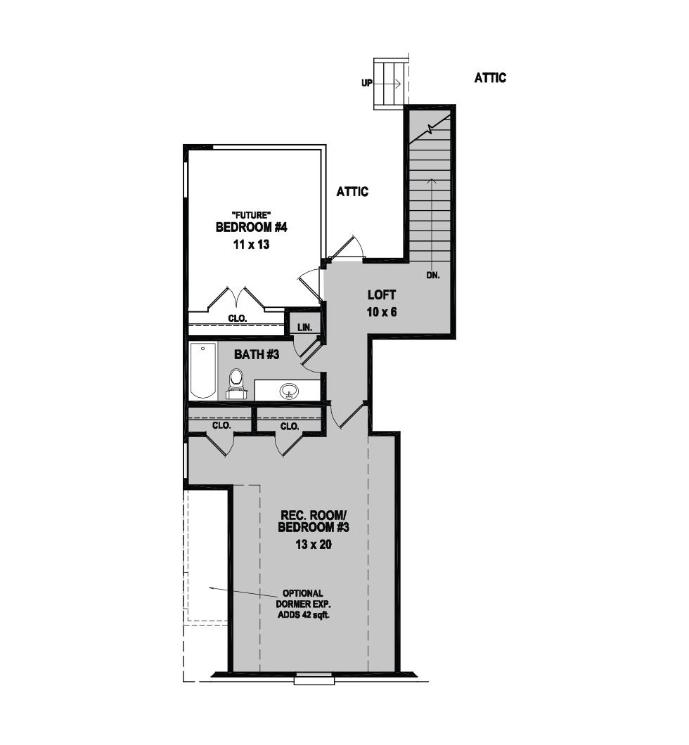
Welcome to the Bristol plan in the Waters of Hidden Springs community in Oakland, TN! This thoughtfully designed open-concept home offers 4 bedrooms and 3 full baths with an estimated completion of May 2026. The spacious layout features a primary suite conveniently located on the first floor, complete with a walk-in shower, drop-in tub with tile surround, quartz countertops, double vanity, linen closet, and a large walk-in closet. The kitchen is perfect for entertaining with quartz counters, gas range, center island, and a generous walk-in pantry. Enjoy a vaulted breakfast area filled with natural light, plus a formal dining room for special gatherings. Upstairs, a versatile loft provides additional living space. Step outside to a covered outdoor living area overlooking a fenced backyard. Blinds are included for added convenience. Don’t miss this beautiful new home!
Features
Interior
| Living/Dining/Kitchen | Separate Dining Room, Great Room, Separate Breakfast Room, Pantry, Island In Kitchen |
| Appliances | Range/Oven, Gas Cooking, Disposal, Dishwasher, Microwave, Cable Wired |
| Additional Rooms | Laundry Room, Loft/Balcony, Attic |
| Other Interior Features | All Window Treatments, Walk-In Closet(s), Attic Access, Security System, Smoke Detector(s), Other (See REMARKS) |
| Flooring | Part Hardwood, Part Carpet, Tile, Smooth Ceiling, 9 or more Ft. Ceiling, Vaulted/Coff/Tray Ceiling |
| Fireplace | Ventless Gas Fireplace, In Den/Great Room |
| First Floor | Dining Room, Den/Great Room, Kitchen, Primary Bedroom, 2nd Bedroom, 2 or More Baths, Laundry Room, Breakfast Room |
| Second Floor | 3rd Bedroom, 4th or More Bedrooms, 1 Bath |
| Total Rooms | 10 |
| Bedrooms Downstairs | 2 |
Utilities
| Heating | Central, Gas |
| Cooling | Central, Ceiling Fan(s) |
| Water/Sewer | Gas Water Heater, Public Water, Public Sewer |
Exterior & Lot
| Number of Stories | 2.0 |
| Pool | None |
| Roof | Composition Shingles |
| Exterior Windows | Brick Veneer, Wood/Composition, Double Pane Window(s), Vinyl Windows |
| Parking | Garage Door Opener(s), Side-Load Garage |
| Lot Description | Professionally Landscaped, Wood Fenced |
| Other Exterior Features | Porch, Covered Patio, Wood Fence |
| Foundation | Slab |
| Lot Dimensions | .23 |
| Covered Parking | 2 |
Neighborhood
| Directions | East on Highway 64, right on Highway 194, then left on Chesnut Ridge Drive. |
1 / 3
85 RIDGEFIELD

