+7 more
2
Beds
2
Baths
1,304
Sq Ft
Source: AutoFill (MAARdata) or Public Records (Cnty Assessor Site)
0.03
Acres
1970
Built
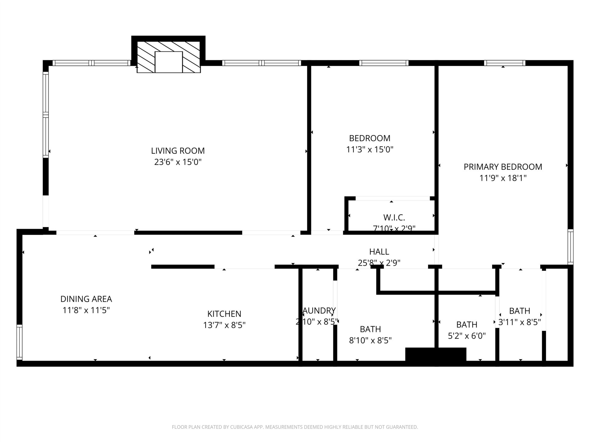
Welcome to 6592 Poplar Woods Circle in Germantown, Tennessee, a 2-bedroom, 2-bath condo offering comfort, convenience, and strong investment potential in a highly desirable location. This sought-after one-story, ground-floor unit features an open floor plan with a spacious living room, cozy fireplace, and sliding glass doors that open to a private fenced patio with east exposure and a new fence. Newer hardwood floors add warmth throughout, with tile in both baths. The primary bedroom includes a private full bath, while the guest bath offers a laundry area for full-size washer and dryer. The kitchen features abundant cabinet space, all appliances, and easy access to the dining room. Spacious closets and an exterior storage room add everyday functionality. Ideal for an owner-occupant or investor in the heart of Germantown.
Features
Interior
| Living/Dining/Kitchen | Separate Living Room, Separate Dining Room |
| Flooring | Wood Laminate Floors, Tile |
| Total Rooms | 5 |
| Bedrooms Downstairs | 2 |
Utilities
| Heating | Central, Gas |
| Cooling | Central, Ceiling Fan(s) |
Financial
| Annual City Tax | $737 |
| Annual County Tax | $1,107 |
Exterior & Lot
| Number of Stories | 1.0 |
| Pool | Neighborhood |
| Exterior Windows | Brick Veneer |
| Parking | Storage Room(s), Parking Lot, Assigned Parking |
| Other Exterior Features | Wrought Iron Security Drs, Patio, Wood Fence, Storage, Sidewalks |
| Lot Dimensions | condo |
Neighborhood
| Directions | Continue on I-240 E to Germantown Merge onto I-240 E Take exit 15A-B to merge onto US-72 E/Poplar Ave toward Germantown Drive to your destination Turn right onto Poplar Woods Cir E Turn right and destination would be on the right. |
1 / 12
6592 POPLAR WOODS, 1

